
销售热线:137 7771 7703
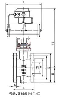
由活塞式气动执行机构和V型球阀组成,是一种由V型切口球面阀板在小开度范围内贴着密封面旋转而控制流体的角行程调节阀。V型切口球面板在增大调节比的同时,在截流时对密封环还有剪切作用,因此气动V型球阀适用于要求大调节比的控制系统,以及对含纤维质流体、料浆类流体的控制。气动V型球阀适用于两位切断、调节的场合,可配阀门定位器输入控制信号(4-20mADC或1-5VDC)气源即可控制运转。亦可配行程限位开关、电磁阀、三联件及0.4-0.7MPa气源可实现开关操作,并送出二对无源触点信号指示阀门的开关气动V型球阀具有连线简单,结构紧凑、尺寸小、重量轻、阻力小、动作稳定可靠等优点。气动V型球阀广泛应用于石油、化工、电力、冶金、钢铁、造纸、医药、食品、纺织、轻工等行业。
1、不带任何管接头的整体式阀体,因此不受管道或螺栓应力影响,并且由于阀体无任何管接头,故耐压壳体不会受压力“突变”的影响;
2、具有一个V型阀体,即使在小流量或高粘度介质的情况下,也可在整个量程范围内,保证控制的精确性;
3、防漏耐用的阀座在其外径处衬有带不锈钢内芯PTFE杯形或是O型密封圈,阀座用截面较大的钨钴硬质合金制成,通过一个合金的波纹弹簧进一步增强了阀座的结构;
4、当阀门关闭时,V型缺口与阀座之间产生楔形剪切作用,并既具有自洁功能又可防止球芯卡死,特别适用于管线结垢冻结或含有纤维和颗粒固体场合。
| 阀体形式 | 直通铸造球型阀 |
| 公称通径 | DN25~400mm |
| 公称压力 | 国标PN1.6、2.5、4.0、6.4 MPa;美标ANSI 150、300LB ;日标JIS 10、20、30K |
| 法兰标准 | JIS、ANSI、GB、JB、HG等 |
| 连接形式 | 法兰式、对夹式 |
| 阀盖形式 | 整体式 (适用温度-45~+400℃) |
| 压盖型式 | 螺栓压紧式 |
| 密封填料 | V型聚四氟乙烯填料、含浸聚四氟乙烯填料、石棉编织填料、柔性石墨 |
| 阀芯形式 | 带V型切口的球型阀芯 |
| 流量特性 | 等百分比特性 |
| 执行器型号 | GT、SR、ST、AT、AW系列单双作用气动执行器 |
| 供气压力 | 0.4~0.7MPa |
| 气源接口 | G1/4"、G1/8"、G3/8"、G1/2" |
| 环境温度 | -20~+90℃ |
| 作用形式 | 单作用执行机构:气关式(B)--失气时阀位开(FO);气开式(K)--失气时阀位关(FC) 双作用执行机构:气关式(B)--失气时阀位保持(FL);气开式(K)-- 失气时阀位保持(FL) |
| 可配附件 | 定位器、电磁阀、空气过滤减压器、保位阀、行程开关、阀位传送器、手轮机构等 |
注:如需详细执行器参数,请进入气动执行器页面进行查阅。
| 公称通径 DN(mm) | 25 | 32 | 40 | 50 | 65 | 80 | 100 | 125 | 150 | 200 | 250 | 300 |
| 额定流量系数KV | 32 | 46 | 78 | 90 | 160 | 250 | 360 | 610 | 1120 | 1850 | 2950 | 3700 |
| 允许压差(MPa) | ≤ 公称压力 | |||||||||||
| 动作范围 | 0~90° | |||||||||||
| 泄露量Q | 软密封VI级、硬密封IV级、符合ANSI B16.104标准 | |||||||||||
| 基本误差 | 带定位器:小于全行程的±2% | |||||||||||
| 回差 | 带定位器:小于全行程的2% | |||||||||||
| 试验压力(MPa) | 公称压力(MPa) | 压力级(class) | JIS(K) | |||||||
| 1.6 | 2.5 | 4.0 | 6.4 | 10.0 | 150 | 300 | 600 | 10K | 20K | |
| 强度试验 | 2.4 | 3.75 | 6.0 | 9.6 | 15.0 | 3.0 | 7.5 | 16.5 | 2.4 | 3.8 |
| 密封试验 | 1.76 | 2.75 | 4.4 | 7.04 | 11.0 | 2.2 | 5.5 | 12.1 | 1.5 | 2.8 |
| 气密试验 | 0.4~0.7MPa | |||||||||
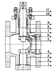
| 1、2 | 底座、阀体 | WCB、CF8、CF8M、CF3M |
|
| 3 | 下轴套 | 铜/不锈钢 | |
| 4 | 压圈 | 2Cr13、304、316、316L | |
| 5 | 阀座 | PTFE、PPL、不锈钢 | |
| 6 | V型球体 | WCB、CF8、CF8M、CF3M (硬化处理) | |
| 7 | 上阀轴 | 铜/不锈钢 | |
| 8 | 阀杆 | 2Cr13、304、316、316L | |
| 9 | 填料 | V型聚四氟乙烯填料、石墨填料 | |
| 10 | 填料压套 | 2Cr13、304、316、316L | |
| 11 | 压板 | WCB、CF8、CF8M、CF3M |

| 公称通径 DN(mm) | 25 | 32 | 40 | 50 | 65 | 80 | 100 | 125 | 150 | 200 | 250 | 300 |
| L | 102 | 102 | 114 | 124 | 143 | 165 | 194 | 213 | 229 | 243 | 297 | 338 |
| L1 | 62 | 62 | 62 | 75 | 80 | 100 | 115 | 130 | 160 | 200 | 240 | 334 |
| H | 60 | 60 | 65 | 95 | 105 | 120 | 140 | 155 | 165 | 205 | 240 | 270 |
| H1 | 根据所配执行机构而定 | |||||||||||
| D | 115 | 140 | 150 | 165 | 185 | 200 | 220 | 250 | 285 | 340 | 405 | 460 |
| D1 | 85 | 100 | 110 | 125 | 145 | 160 | 180 | 210 | 240 | 295 | 355 | 410 |
| D2 | 65 | 76 | 84 | 99 | 118 | 132 | 156 | 184 | 211 | 266 | 319 | 370 |
| b | 16 | 18 | 18 | 20 | 20 | 20 | 22 | 22 | 24 | 24 | 26 | 28 |
| A、A1 | 根据阀门所需力矩而定,配置执行器不同,外形尺寸也不相同 | |||||||||||
注:以上参数均以国标PN1.6MPa为准,其他压力等级请咨询公司技术部,表中尺寸为不带标准附件数据,另由于产品改进技术创新参数可能有一定变化,请咨询公司技术部门索取最新数据。

手机二维码

微信二维码