
销售热线:137 7771 7703
气动调节O型球阀是一种转角为90°的旋转类球阀,采用角行程气动执行器及球阀组成。是在引进国外先进技术的基础上进行特殊设计、精心制造的产品。气动调节球阀采用智能控制与定位,与电气阀门定位器配套,输入4~20mADC信号及0.4~0.7MPa气源即可控制运转,实现对压力、流量、温度、液位等参数的调节。气动调节球阀是以压缩空气为动力,阀杆带动阀芯在阀体内转动90°可以实现全开—全闭的动作。气动调节球阀按其密封性能分为金属密封与软密封。具有结构紧凑、体积精小、运行可靠、密封性好、维修容易、安装方便、适应性强等优点。特别适合于介质是粘稠、含颗粒、纤维性质的场合。气动调节球阀广泛应用于石油、化工、教学设备、轻工、高压设备、制药、造纸等工业自动控制系统中,作远距离集中控制或就地控制。
| 阀体形式 | 直通铸造球型阀 |
| 公称通径 | DN15~300mm |
| 公称压力 | PN1.6、2.5、4.0、6.4 MPa;ANSI 150、300LB ;JIS 10、20、30K |
| 法兰标准 | JIS、ANSI、GB、JB、HG等 |
| 连接形式 | 法兰式、焊接式、螺纹式 |
| 阀盖形式 | 整体式 |
| 压盖型式 | 螺栓压紧式 |
| 密封填料 | V型聚四氟乙烯填料、含浸聚四氟乙烯填料、石棉编织填料、柔性石墨 |
| 阀芯形式 | O型球体阀芯 |
| 流量特性 | 快开特性 |
| 执行器型号 | GT、SR、ST、AT、AW系列单双作用气动执行器 |
| 供气压力 | 0.4~0.7MPa |
| 气源接口 | G1/4"、G1/8"、G3/8"、G1/2" |
| 环境温度 | -30~+70℃ |
| 作用形式 | 单作用执行机构:气关式(B)--失气时阀位开(FO);气开式(K)--失气时阀位关(FC) 双作用执行机构:气关式(B)--失气时阀位保持(FL);气开式(K)-- 失气时阀位保持(FL) |
| 可配附件 | 定位器、电磁阀、空气过滤减压器、保位阀、行程开关、阀位传送器、手轮机构等 |
注:如需详细执行器参数,请进入气动执行器页面进行查阅。
| 公称通径 DN(mm) | 15 | 20 | 25 | 32 | 40 | 50 | 65 | 80 | 100 | 125 | 150 | 200 | 250 | 300 |
| 额定流量系数KV | 21 | 38 | 72 | 112 | 170 | 273 | 384 | 512 | 940 | 1452 | 2222 | 3589 | 5128 | 7359 |
| 允许压差(MPa) | ≤ 公称压力 | |||||||||||||
| 动作范围 | 0~90° | |||||||||||||
| 泄露量Q | 软密封为零泄露;金属密封符合ANSI B16.104 IV级标准 | |||||||||||||
| 基本误差 | 带定位器:小于全行程的±2% | |||||||||||||
| 回差 | 带定位器:小于全行程的2% | |||||||||||||
| 试验压力(MPa) | 公称压力(MPa) | 压力级(class) | JIS(K) | |||||||
| 1.6 | 2.5 | 4.0 | 6.4 | 10.0 | 150 | 300 | 600 | 10K | 20K | |
| 强度试验 | 2.4 | 3.75 | 6.0 | 9.6 | 15.0 | 3.0 | 7.5 | 16.5 | 2.4 | 3.8 |
| 密封试验 | 1.76 | 2.75 | 4.4 | 7.04 | 11.0 | 2.2 | 5.5 | 12.1 | 1.5 | 2.8 |
| 气密试验 | 0.5~0.7MPa | |||||||||
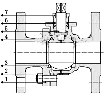
| 1 | 左阀体 | WCB、CF8、CF8M、CF3M |
|
| 2 | 右阀体 | WCB、CF8、CF8M、CF3M | |
| 3 | 阀座 | PEFE、PPL、304、316 | |
| 4 | 球体 | 2Cr13、304、316 | |
| 5 | 阀杆 | 2Cr13、304、316 | |
| 6 | 密封填料 | PTFE/柔性石墨 | |
| 7 | 填料压盖 | WCB、CF8、CF8M、CF3M |

| 公称通径 DN(mm) | 15 | 20 | 25 | 32 | 40 | 50 | 65 | 80 | 100 | 125 | 150 | 200 | 250 | 300 |
| L | 130 | 140 | 150 | 165 | 180 | 200 | 220 | 250 | 280 | 320 | 360 | 400 | 630 | 750 |
| H | 44.5 | 49 | 55 | 65 | 65 | 75 | 90 | 95 | 115 | 127 | 140 | 172.5 | 310 | 350 |
| H1 | 根据所配执行机构而定 | |||||||||||||
| D | 95 | 105 | 115 | 140 | 150 | 165 | 185 | 200 | 220 | 250 | 285 | 340 | 405 | 460 |
| D1 | 65 | 75 | 85 | 100 | 110 | 125 | 145 | 160 | 180 | 210 | 240 | 295 | 355 | 410 |
| D2 | 46 | 56 | 65 | 76 | 84 | 99 | 118 | 132 | 156 | 184 | 211 | 266 | 319 | 370 |
| n-φd | 4-14 | 4-14 | 4-14 | 4-18 | 4-18 | 4-18 | 4-18 | 8-18 | 8-18 | 8-18 | 8-22 | 12-22 | 12-26 | 12-26 |
| A、A1 | 根据阀门所需力矩而定,配置机型不同,外形尺寸也不相同 | |||||||||||||
注:以上参数均以国标PN1.6MPa为准,其他压力等级请咨询公司技术部,表中尺寸为不带标准附件数据,另由于产品改进技术创新参数可能有一定变化,请咨询公司技术部门索取最新数据。

手机二维码

微信二维码