
销售热线:137 7771 7703
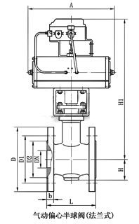
气动偏心半球阀(凸轮挠曲调节阀)属于角行程阀,是由角行程活塞式气动执行器及和偏心半球阀组成,气动偏心半球阀可配以阀门定位器输入控制信号(4-20mADC或1-5VDC)气源即可控制运转。亦可配行程限位开关、电磁阀、减压阀及0.4-0.7MPa气源可实现开关操作,并送出二对无源触点信号指示阀门的开关。气动偏心半球阀是一种由部分球阀板绕偏心轴心旋转来控制流体的角行程调节阀。阀芯的回转中心不与旋转轴同心,可减少磨损,延长使用寿命,阀芯后部设有一个导流翼,有利于流体稳定流动,具有良好的稳定性。其次,还有流量大,可调范围广等特点。气动偏心半球阀(凸轮挠曲调节阀)广泛应用于石油、化工、电力、冶金、钢铁、造纸、医药、食品、纺织、轻工等行业。
| 阀体形式 | 直通铸造偏心阀体 |
| 公称通径 | DN25~300mm |
| 公称压力 | PN1.6、2.5、4.0、6.4 MPa,(注:PN6.4MPa仅用于DN25~150的阀) |
| 法兰标准 | GB、JB、HG、ANSI、JIS等 |
| 连接形式 | 法兰式、对夹式 |
| 阀盖形式 | 整体式 (适用温度-45~+400℃) |
| 压盖型式 | 螺栓压紧式 |
| 密封填料 | V型聚四氟乙烯填料、含浸聚四氟乙烯填料、石棉编织填料、柔性石墨 |
| 阀芯形式 | 偏心旋转阀芯(带导流翼) |
| 流量特性 | 近似等百分比 |
| 执行器型号 | GT、SR、ST、AT、AW系列单双作用气动执行器 |
| 供气压力 | 0.4~0.7MPa |
| 气源接口 | G1/4"、G1/8"、G3/8"、G1/2" |
| 环境温度 | -20~+90℃ |
| 作用形式 | 单作用执行机构:气关式(B)--失气时阀位开(FO);气开式(K)--失气时阀位关(FC) 双作用执行机构:气关式(B)--失气时阀位保持(FL);气开式(K)-- 失气时阀位保持(FL) |
| 可配附件 | 定位器、电磁阀、空气过滤减压器、保位阀、行程开关、阀位传送器、手轮机构等 |
注:如需详细执行器参数,请进入气动执行器页面进行查阅。
| 公称通径 DN(mm) | 25 | 32 | 40 | 50 | 65 | 80 | 100 | 125 | 150 | 200 | 250 | 300 | |
| 额定流 量系数 KV | 全腔型 | 14 | 25 | 30 | 55 | 100 | 135 | 230 | 320 | 500 | 850 | 1300 | 1750 |
| 60%腔型 | - | - | - | - | - | - | - | - | 300 | 510 | 780 | 1050 | |
| 40%腔型 | 6 | 10 | 12 | 20 | 40 | 54 | 92 | 128 | 200 | 340 | 520 | 700 | |
| 允许压差(MPa) | ≤ 公称压力 | ||||||||||||
| 动作范围 | 全开60° | ||||||||||||
| 泄露量Q | 软密封VI级、硬密封IV级,符合ANSI B16.104标准 | ||||||||||||
| 基本误差 | 带定位器:小于全行程的±2% | ||||||||||||
| 回差 | 带定位器:小于全行程的2% | ||||||||||||
| 可调范围 | 全腔型(100:1)、60%腔型(60:1)、40%腔型(40:1) | ||||||||||||
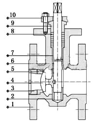
| 1 | 阀体 | WCB、CF8、CF8M、CF3M |
|
| 2 | 下轴套 | 304、316 | |
| 3 | 压圈 | 2Cr13、304、316、316L | |
| 4 | 半球体 | WCB、CF8、CF8M、CF3M (硬化处理) | |
| 5 | 阀座 | PTFE、PPL、不锈钢 | |
| 6 | 阀杆 | 2Cr13、304、316、316L | |
| 7 | 上轴套 | 304、316 | |
| 8 | 填料 | V型聚四氟乙烯填料、石墨填料 | |
| 9 | 填料压套 | 2Cr13、304、316、316L | |
| 10 | 填料压盖 | WCB、CF8、CF8M、CF3M |

| 公称通径 DN(mm) | 25 | 32 | 40 | 50 | 65 | 80 | 100 | 125 | 150 | 200 | 250 | 300 | |
| L | 法兰式 | 102 | 102 | 114 | 124 | 143 | 165 | 194 | 213 | 229 | 243 | 297 | 338 |
| 对夹式 | 62 | 62 | 62 | 75 | 80 | 100 | 115 | 130 | 160 | 200 | 240 | 334 | |
| H | 60 | 60 | 65 | 95 | 105 | 120 | 140 | 155 | 165 | 205 | 240 | 270 | |
| H1 | 根据所配执行机构而定 | ||||||||||||
| D | 115 | 140 | 150 | 165 | 185 | 200 | 220 | 250 | 285 | 340 | 405 | 460 | |
| D1 | 85 | 100 | 110 | 125 | 145 | 160 | 180 | 210 | 240 | 295 | 355 | 410 | |
| D2 | 65 | 76 | 84 | 99 | 118 | 132 | 156 | 184 | 211 | 266 | 319 | 370 | |
| b | 16 | 18 | 18 | 20 | 20 | 20 | 22 | 22 | 24 | 24 | 26 | 28 | |
| A、A1 | 根据阀门所需力矩而定,配置机型不同,外形尺寸也不相同 | ||||||||||||
注:以上参数均以国标PN1.6MPa为准,其他压力等级请咨询公司技术部,表中尺寸为不带标准附件数据,另由于产品改进技术创新参数可能有一定变化,请咨询公司技术部门索取最新数据。

手机二维码

微信二维码