
销售热线:137 7771 7703
分为整体式、两段式及三段式。阀体铸造采用德国引进的先进工艺,结构合理、造型美观。配行程限位开关、电磁阀、三联件及0.4-0.7MPa气源可实现开关操作,并送出二对无源触点信号指示阀门的开关。气动内螺纹球阀阀座采用弹性密封结构,启闭轻松,密封可靠。阀杆采用有倒密封的下装式结构,阀腔异常升压时,阀杆不会被冲击。可设置90°开关定位机构,根据需要加锁以防止误操作。气动内螺纹球阀适用于PN1.0~4.0MPa,工作温度-29~180℃(密封圈为增强聚四氟乙烯)或-29~300℃(密封圈为对位聚苯)的各种管路上,用于截断或接通管路中的介质,选用不同的材质,气动内螺纹球阀可分别适用于水、蒸汽、油品、硝酸、醋酸、氨盐水、中和水等多种介质本球阀适用于食品、饮料、医药、化工等纯净管路及工业环保、水处理、高层建筑、给排水管路作启闭或调节流量之用。
| 阀体形式 | 内螺纹精铸阀体 |
| 公称通径 | DN6~100mm |
| 公称压力 | PN1.6、2.5、4.0、6.4 MPa;ANSI 150 300 600LB;JIS 10 20 30K |
| 连接形式 | 管螺纹(G)、锥螺纹(NPT) |
| 阀盖形式 | 一体式 |
| 压盖型式 | 压帽拧紧式 |
| 密封填料 | V型聚四氟乙烯填料、含浸聚四氟乙烯石棉填料、石棉纺织填料、石墨填料 |
| 阀芯形式 | O型球型阀芯 |
| 流量特性 | 快开特性 |
| 执行器型号 | GT、SR、ST、AT、AW系列单双作用气动执行器 |
| 供气压力 | 0.4~0.7MPa |
| 气源接口 | G1/4"、G1/8"、G3/8"、G1/2" |
| 环境温度 | -20~+90℃ |
| 作用形式 | 单作用执行机构:气关式(B)--失气时阀位开(FO);气开式(K)--失气时阀位关(FC) 双作用执行机构:气关式(B)--失气时阀位保持(FL);气开式(K)-- 失气时阀位保持(FL) |
| 可配附件 | 定位器、电磁阀、空气过滤减压器、保位阀、行程开关、阀位传送器、手轮机构等 |
注:如需详细执行器参数,请进入气动执行器页面进行查阅。
|
|
三片式气动球阀(阀体) | 二片式气动球阀(阀体) |
| 1 | 左阀体 | WCB、CF8、CF8M、CF3M |
| 2 | 阀座 | PEFE、PPL、304、316 |
| 3 | 球体 | WCB、CF8、CF8M、CF3M |
| 4 | 密封圈 | PTFE/金属石墨缠绕垫片 |
| 5 | 右阀体(中阀体) | WCB、CF8、CF8M、CF3M |
| 6 | 阀杆 | 2Cr13304、316、316L |
| 7 | 填料压盖 | WCB、CF8、CF8M、CF3M |
| 公称通径DN(mm) | 6 | 8 | 10 | 15 | 20 | 25 | 32 | 40 | 50 | 65 | 80 | 100 |
| 允许压差(MPa) | ≤ 公称压力 | |||||||||||
| 动作范围 | 0~90° | |||||||||||
| 泄露量Q | 软密封为零泄露;金属密封符合ANSI B16.104 IV级标准 | |||||||||||
| 基本误差 | 带定位器:小于全行程的±2% | |||||||||||
| 回差 | 带定位器:小于全行程的2% | |||||||||||
| 试验压力(Mpa) | 公称压力(Mpa) | 压力级(class) | JIS(K) | |||||||
| 1.6 | 2.5 | 4.0 | 6.4 | 10.0 | 150 | 300 | 600 | 10K | 20K | |
| 强度试验 | 2.4 | 3.8 | 6.0 | 9.6 | 15.0 | 3.1 | 7.8 | 15.3 | 2.4 | 3.8 |
| 密封试验 | 1.8 | 2.8 | 4.4 | 7.0 | 11.0 | 2.2 | 5.6 | 11.2 | 1.5 | 2.8 |
| 气密试验 | 0.5~0.7 | |||||||||

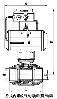
| 公称通径 | 内螺纹连接 | |||||
| mm | inch | D | L | H | G | A |
| 10 | 3/8 | 10 | 60 | 157 | 3/8″ | 140 |
| 15 | 1/2 | 15 | 75 | 168 | 1/2″ | 140 |
| 20 | 3/4 | 20 | 80 | 170 | 3/4″ | 140 |
| 25 | 1 | 25 | 90 | 180 | 1″ | 140 |
| 32 | 11/4 | 32 | 110 | 185 | 11/4″ | 164 |
| 40 | 11/2 | 38 | 125 | 200 | 11/2″ | 164 |
| 50 | 2 | 50 | 144 | 210 | 2″ | 190 |
| 65 | 21/2 | 64 | 186 | 230 | 21/2″ | 210 |
| 80 | 3 | 78 | 206 | 250 | 3″ | 247 |
| 100 | 4 | 98 | 240 | 270 | 4″ | 247 |
注:以上参数均以国标PN1.6MPa为准,其他压力等级请咨询公司技术部,表中尺寸为不带标准附件数据,另由于产品改进技术创新参数可能有一定变化,请咨询公司技术部门索取最新数据。

手机二维码

微信二维码