
销售热线:137 7771 7703
一、电动衬氟调节阀 概述
ZRSF46系列电动衬氟调节阀,是由3810L或DKZ型电动执行机构或电子式电动执行机构和衬氟塑直通单座调节阀阀体两部分组成,由于该阀接触介质的部位全衬有氟塑料,又采用聚四氟乙烯材质的波纹管密封,能广泛适用于对酸、碱等强腐蚀机制和有毒、易挥发等气体、液体介质的过程控制、调节。
二、电动衬氟调节阀 特点
1、耐腐蚀:阀体内腔、阀芯、阀座、阀杆均包衬2.5~3mm厚的F46,能耐酸、碱,耐强腐蚀。
2、密封性能好:采用聚四聚四氟乙烯材质的波纹管和填料双重密封,确保无渗漏。
3、泄漏量小:由于阀芯、阀座是软密封,故泄漏量极小。
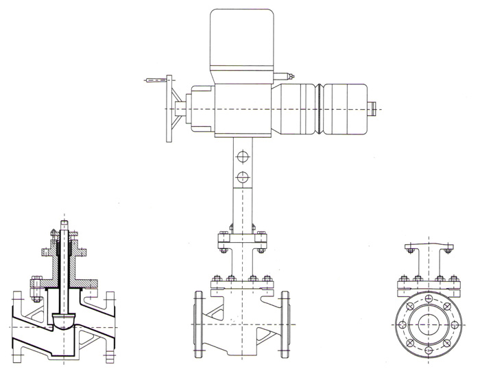
三、电动衬氟调节阀 结构特征

五、电动衬氟调节阀 规格与技术参数
| 公称通径mm | 20 | 25 | 32 | 40 | 50 | 65 | 80 | 100 | 125 | 150 | 200 | 250 | 300 | ||||
| 阀座直径mm | 10 | 12 | 15 | 20 | 25 | 32 | 40 | 50 | 65 | 80 | 100 | 125 | 150 | 200 | 250 | 300 | |
| 额定流量系数Kv | 直线 | 1.8 | 2.8 | 4.4 | 6.9 | 11 | 17.6 | 27.5 | 44 | 69 | 110 | 176 | 275 | 440 | 690 | 1100 | 1760 |
| 等百分比 | 1.6 | 2.5 | 4 | 6.3 | 10 | 16 | 25 | 40 | 63 | 100 | 160 | 250 | 400 | 630 | 1000 | 1600 | |
| 公称压力MPa | 0.6、1.0、1.6、2.5 | ||||||||||||||||
| 行程 mm | 10 | 16 | 25 | 40 | 60 | 100 | |||||||||||
| 工作温度 ℃ | -30℃~+150℃ | ||||||||||||||||
| 流量特性 | 直线、等百分比 | ||||||||||||||||
| 作用方式 | 电开式(K常开);电关式(B) | ||||||||||||||||
| 固有可调比R | 30:1 | ||||||||||||||||
| 信号范围Pr | 0~10Madc;4~20mmADC | ||||||||||||||||
| 供电电源 | 220V 50~60HZ | ||||||||||||||||
| 防爆等级 | 普通型、防爆型 | ||||||||||||||||
| 泄漏等级 | VI | ||||||||||||||||
注:根据用户需要,可配国外、国内各种型号的电动执行机构。
六、电动衬氟调节阀 主要性能指标
| 项目 | 技术性能指标 |
| 基本误差% | ≤±5 |
| 回差% | ≤3 |
| 死区% | ≤5 |
| 泄漏量 | ≤ 0.01%阀额定容量 |
| 额定流量系数误差% | ≤±10;当KV≤6.3时,为≤±15 |
七、电动衬氟调节阀 主要零部件材料
| 零件名称 | 材 料 |
| 阀体、阀盖 | HT200、ZG230~450、ZG1Cr18Ni9Ti |
| 衬里材料 | F46、F4、F3、PO、PE、X、X3、PFA |
| 阀芯 | 1Cr18Ni9Ti |
| 波纹管 | F4 |
| 填料 | 聚四氟乙烯、柔性石墨 |
| 弹簧 | 60Si2Mn |
| 膜盖 | A3 |
| 阀杆、推杆 | 2Cr13/1Cr18Ni9Ti |
| 衬套 | 2Cr13 |
八、电动衬氟调节阀 主要连接尺寸

九、电动衬氟调节阀 主要技术参数
| 公称通径 | 标准值 | 参数值 | |||||||
| DN(mm) | PN1.0 PN1.6 | ||||||||
| L | D | D1 | D2 | f | b | Z—φd | D0 | H | |
| 15 | 130 | 95 | 65 | 45 | 2 | 14 | 4—φ14 | 460 | 673 |
| 20 | 150 | 105 | 75 | 55 | 2 | 16 | 4—φ14 | 460 | 673 |
| 25 | 160 | 115 | 85 | 65 | 2 | 16 | 4—φ14 | 460 | 698 |
| 32 | 180 | 135 | 100 | 78 | 2 | 18 | 4—φ18 | 460 | 720 |
| 40 | 200 | 145 | 110 | 85 | 3 | 18 | 4—φ18 | 460 | 723 |
| 50 | 230 | 160 | 125 | 100 | 3 | 20 | 4—φ18 | 460 | 740 |
| 65 | 290 | 180 | 145 | 120 | 3 | 20 | 8—φ18 | 530 | 850 |
| 80 | 310 | 195 | 160 | 135 | 3 | 22 | 8—φ18 | 530 | 866 |
| 100 | 350 | 215 | 180 | 155 | 3 | 22 | 8—φ18 | 530 | 884 |
| 125 | 400 | 245 | 210 | 185 | 3 | 24 | 8—φ18 | 530 | 1040 |
| 150 | 480 | 280 | 240 | 210 | 3 | 24 | 8—φ23 | 530 | 1065 |
| 200 | 600 | 335 | 295 | 265 | 3 | 26 | 8—φ23 | 530 | 1090 |
| 250 | 622 | 390 | 350 | 320 | 3 | 28 | 12—φ23 | 630 | 1256 |
| 300 | 698 | 440 | 400 | 368 | 4 | 28 | 12—φ23 | 630 | 1520 |

手机二维码

微信二维码