
销售热线:137 7771 7703
ZHA/B型多弹簧气动薄膜执行器是针对老式的ZMA/B型单弹簧气动薄膜执行器存在的尺寸大、笨重、深波纹膜片不可靠等问题设计开发的新型气动薄膜执行机构,其膜盖盘、限制件等零件均采用钢板冲压成型。膜片形状较复杂,采用特殊的压制工艺,使爆破强度达22kg/cm2以上。多弹簧形式改善了弹簧制造的工艺性,有利于不同弹簧范围的组配。可调零功能则提高了线性精度。具有受力均匀、稳定性好、尺寸小,重量轻等优点。
可配带气动、电—气阀门定位器和空气过滤器等附件。还可配装ZPXS、ZDXS型轻小侧装、顶装手操机构。
作用形式
ZHA型:正作用,当信号压力增加时,阀杆部件向下移。
ZHB型:反作用,当信号压力增加时,阀杆部件向上移。
| 零件名称 | 材料 | 零件名称 | 材料 |
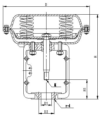
上、下膜盖 | 钢板 | 支架 | HT200ZMXA/B-60、ZG250-450 |
波纹膜片 | 丁晴胶夹尼龙 | 轴用密封圈 | 聚氨酯(用于反作用) |
平衡弹簧 | 60Si2MnA | 推杆 | 2Cr13 |
| 型号 | ZHA/B-11 | ZHA/B-22 | ZHA/B-23 | ZHA/B-34 | ZHA/B-45 | ZHA/B-56 |
行程(mm) | 10 | 10、16 | 16、25 | 40 | 40、60 | 100 |
有效面积(cm) | 200 | 350 | 350 | 560 | 960 | 1600 |
D1(mm) | 32 | 60 | 60 | 80 | 95 | 100 |
D2(mm) | / | 80 | 80 | 105 | 122 | 130 |
n-d | / | 2-Φ10 | 2-Φ10 | 4-Φ12 | 4-Φ14 | 4-Φ18 |
M | M8 | M8 | M8 | M12x1.25 | M16x1.5 | M20X1.5 |
S(ZHA/ZHB)mm | 80/70 | 100/84 | 100/75 | 154/114 | 180/115 | 260/160 |
气源接口尺寸 | M10×1 | M12×1.25 | M16×1.5 | |||
气源压力 | 0.14、0.25MPa | |||||
环境温度 | -30~60℃ | |||||
弹簧范围 | 0.02~0.10、0.04~0.10、0.08~0.24MPa | |||||
| 项目 | 带定位器 | 不带定位器 |
基本误差% | ≤±1 | ≤±4(输出行程的百分数表示) |
回差% | ≤1 | ≤2.5(输出行程的百分数表示) |
死差% | ≤0.8 | ≤2.5(输出压力范围的百分数表示) |
额定行程偏差% | ±2.5 | |
始终点偏差% | ±0.1 | ±2.5 |
零位迁移量% | ±20 | |
薄膜耐压强度MPa | 20~24 | |
工作寿命 | 不少于30万次 | |

执行器型号 | ZHA/B-11 | ZHA/B-22 | ZHA/B-23 | ZHA/B-34 | ZHA/B-45 | ZHA/B-5 |
H(mm) | 220 | 270 | 300 | 375 | 490 | 720 |
D(mm) | 236 | 285 | 285 | 360 | 470 | 620 |
其他尺寸根据阀体而定 | ||||||
重量(Kg) | 10 | 12 | 16 | 22 | 52 | 125 |

手机二维码

微信二维码