
销售热线:137 7771 7703
概述
ROTORK作为世界上主要的执行机构制造厂家,因其耐用的产品而享誉全球,凭借着数十年在各种环境下安装、使用的经验,已开发出了一套高可靠性的设计。并使执行机构在操作及安全应用方面处于领先地位。 英国罗托克(ROTORK)公司于90年代推出了智能型电动执行器(IQ系列),世界上首次推出的执行器--可以使你在不打开电动箱端盖即可进行调试和查询,与普通执行器相比具有如下特点: (1)便利的参数遥控设定功能。投入使用前,只要使用由厂家提供的专用设定工具,对准执行器就可进行参数的遥控设定。不仅简化了设定工作程序,还提高了设备安全运行性,特别是那些要求防爆的场所尤为重要; (2)丰富的在线显示功能。采用液晶显示技术,利用内置式液晶显示板,不仅可准确显示阀门开、关状态和正常阀门开度等,且在参数设定或执行器有故障时,也能显示出重要信息; (3)完善的自诊断及保护功能。它可在线诊断出伺服电机过载、过热情况及电源的状态等,还能自动识别三相电源相位,紧急情况时,执行器可保位或运行到预先设定的安全位置; (4)先进的控制功能。采用了计算机技术,把先进自动跟随控制技术设计为它的一项标准功能。执行器响应速度与实际要求偏差大小成比例,即所谓的“变速控制”, 大大提高了执行器响应品质。
执行机构性能
双密封、双保护 IQ外壳的额定防护等级为IP68-水下3米,48小时,NEMA4/4X/6。它是完全防水可防尘,而且不透气。Rotork双密封系统确保内部元件受到保护,因为它们被防水接线端子模块将内部电缆与接线端子箱隔离。即使在现场接线期间,移去接线端盖,保护仍得以维持,且接线端子模块独立密封。 非侵入式终身密封 IQ的现场调试无需卸掉电气箱端盖。所有设定和调整均使用提供的红外线设定器来完成。在我们制造厂的受控环境中组装后,气体交换已被排除-所有内部元件终身得到保护。非侵入式控制器意味着没有穿过控制箱体的贯通轴。 简单、可靠,IQ简化了设计,而规格和性能有所扩展。 力矩测量 执行器能够可靠可精确地测定操作一个阀门的作用力,这是对阀门和执行器提供保护的基础。IQ使用其专利的输出力矩测量系统,该系统是从人们熟悉的类似压力传感器这样的过程测量技术研制而成的。在工业中经过验证和测试的这一技术适用于阀门执行器。在带有负荷的情况下,用安装在力矩传感器内的压敏电阻传感器,是电机蜗杆推力的反作用力直接转换成输出力矩比例的电信号,可获得准确的、可重复的力矩测量值,且独立于频率、电压和温度变化。 阀位测量 可靠的过程控制取决与阀门行程末端的准确定位,而液压控制取决于阀门行程中间的准确定位。拥有专利的非接触式阀位测量系统则是执行器控制中最简单的设计。只有一个活动部件的分解器把输出中心套筒的旋转转换成电信号,然后与存储在安全、永久的存储器中的限位作比较。 元件减少 合理的机械和电气系统使可靠性得到提高。作为IQ的基础,手轮结构和控制底架的改进提高了执行器的可靠性。最新?quot;系统集成芯片技术已因应用于IQ控制模块。元件数量明显减少,从而减少了互连、布线和印刷电路板的复杂性。采用了诸如数据显示功能以及更好的系统保护等增强功能,从而提高了性能及可靠性。 安全完整性 最初研制IQ是为了提高阀门执行器的安全完整性状态。通过再次的设计和创新,Rotork能够提供解决办法,是工艺工程师能够根据确定的安全完整性等级评估选择执行器。鉴于IEC615081、ISA-S84.01和DIN19250等国际标准成为评估工艺系统安全完善的要求,Rotork 将乐意讨论您的要求。
规格与技术参数
公称通径DN(mm) | 20 | 25 | 32 | 40 | 50 | 65 | 80 | 100 | 125 | 150 | 200 | 250 | 300 | 350 | 400 | ||
额定流量 | 单座 | P | 1.2~5.0 | 8 | 12 | 20 | 32 | 50 | 80 | 120 | 200 | 280 | 450 | ||||
双座 | N | 10 | 16 | 25 | 40 | 63 | 100 | 160 | 250 | 400 | 630 | 1000 | 1600 | ||||
套筒 | M | 15 | 20 | 30 | 75 | 115 | 240 | 350 | |||||||||
公称压力(MPa) | 1.6 4.0 6.0 | ||||||||||||||||
行程(mm) | 10 | 16 | 25 | 40 | 60 | 100 | |||||||||||
信号 | 0-10mA DC 4-20mA DC | ||||||||||||||||
介质温度℃ | -200~+200、-40~+250(常温) -40~+450(中温) -250~-60(低温) | ||||||||||||||||
流量特性 | 直线 百分比 | ||||||||||||||||
可调范围 | 30:1 | ||||||||||||||||
阀 | 公 | 0.6 | 低温:ZG1Cr18Ni9Ti | ||||||||||||||
1.6 | 常温:ZG230-450 | ||||||||||||||||
4.0 | 低温:ZG1Cr18Ni9Ti | ||||||||||||||||
常温:ZG230-450、ZG1Cr18Ni9Ti | |||||||||||||||||
中温:ZG230-450、ZG1Cr18Ni9Ti | |||||||||||||||||
6.4 | 低温:ZG1Cr18Ni9Ti | ||||||||||||||||
常温:ZG230-450、ZG1Cr18Ni9Ti | |||||||||||||||||
中温:ZG230-450、ZG1Cr18Ni9Ti | |||||||||||||||||
法兰尺寸 | 符合JB78-59、JB79-59标准,可按JB/79.1-94、JB、ANSI、JIS、DIN 等标准订货生产 | ||||||||||||||||
阀芯材质 | 1Cr18Ni9,SS304,0Cr18Ni12Mo2Ti,SS316,ZG1Cr18Ni9Ti | ||||||||||||||||
上阀盖型式 | 普通式(常温型),热片式(中温型),长劲式(低温式) | ||||||||||||||||
主要技术性能指标
项目 | 指标 | |
基本误差% | ±5.0 | |
回差% | 3.0 | |
死区% | 3.0 | |
泄漏量 | 单座阀 | 符合JB/T7387-94 IV级 小于阀的额定容量×10-4 |
双座阀 | 符合JB/T7387-94 Ⅲ级 小于阀的额定容量×10-3 | |
套筒阀 | 符合JB/T7387-94 Ⅲ级 小于阀的额定容量×10-3 | |
允许压差
使用情况 | 阀芯处于流开状态,关闭时阀后压力P2=0 | ||||||||||
公称通径 | 阀座直径 | 执行机构 | 允许压差(sMPa) | ||||||||
电动直通单座调节阀 | |||||||||||
PN1.6(MPa) | PN6.4(MPa) | ||||||||||
3/4 | 3 | 4 | 5 | ||||||||
6 | 7 | 8 | |||||||||
10 | 12 | 15 | 20 | 400,1000,2500 | 公称压力 | 3.8 | 2.7 | 1.7 | 1.0 | ||
公称压力 | 4.34.3 | 2.5 | |||||||||
25 | 26 | 400,1000,2500 | 0.5 | 公称压力 | 0.6 | 3.6 | |||||
32 | 32 | 0.4 | 公称压力 | 0.4 | 2.3 | ||||||
40 | 40 | 400,1000 | 0.7 | 1.0 | 0.7 | 1.5 | |||||
50 | 50 | 0.5 | 1.0 | 0.5 | 1.0 | ||||||
65 | 66 | 6400,16000 | 1.4 | 1.4 | |||||||
80 | 80 | 1.0 | 1.0 | ||||||||
100 | 100 | 0.6 | 0.6 | ||||||||
125 | 125 | 6400,16000 | 0.5 | 1.0 | 0.5 | 1.0 | |||||
150 | 150 | 0.3 | 0.7 | 0.3 | 0.7 | ||||||
200 | 200 | 0.2 | 0.4 | 0.2 | 0.4 | ||||||
250 | 16000 | 0.3 | 0.3 | ||||||||
300 | 0.2 | 0.2 | |||||||||
注:双座、套筒阀一般可承受≤公称压力,单座调节阀差压可参考上表。
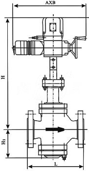
外形尺寸

ZDZP单座 ZDZN套筒 ZDZN双座
1、电动单座、双座调节阀
公称通径 | A | B | L | H | H1 | ||||||
ZRZP单座 | ZRZN双座 | ||||||||||
PN1.6 | PN4.0 | PN6.4 | 普通型 | 热片型 | 普通型 | 热片型 | ZRZP | ZRZN | |||
20 | 230 | 460 | 180 | 185 | 190 | 653 | 804 | / | / | 65 | / |
25 | 185 | 190 | 205 | 665 | 816 | 670 | 937 | 99 | 104 | ||
32 | 200 | 210 | 220 | 671 | 822 | 673 | 943 | 105 | 107 | ||
40 | 220 | 230 | 240 | 683 | 834 | 693 | 982 | 116 | 126 | ||
50 | 230 | 530 | 250 | 255 | 265 | 698 | 849 | 698 | 992 | 131 | 131 |
65 | 275 | 285 | 295 | 789 | 949 | 799 | 1147 | 165 | 175 | ||
80 | 305 | 310 | 325 | 792 | 952 | 809 | 1177 | 173 | 190 | ||
100 | 350 | 355 | 370 | 796 | 956 | 821 | 1207 | 177 | 202 | ||
125 | 260 | 630 | 410 | 425 | 440 | 847 | 1062 | 872 | 1357 | 225 | 250 |
150 | 450 | 460 | 475 | 855 | 1070 | 882 | 1377 | 233 | 260 | ||
200 | 550 | 560 | 570 | 894 | 1109 | 924 | 1459 | 272 | 302 | ||
250 | 670 | 660 | 670 | 1156 | 1368 | 1156 | 1368 | 422 | 422 | ||
300 | 740 | 785 | 800 | 1215 | 1427 | 1215 | 1427 | 484 | 484 | ||
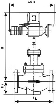
2、电动套筒调节阀
公称通径 | L(mm) | A | B | H(mm) | H1(mm) | |||
PN16 | PN40 | PN64 | 普通型 | 热片型 | ||||
25 | 184 | 197 | 230 | 230 | 460 | 668 | 819 | 75 |
40 | 222 | 235 | 260 | 684 | 835 | 95 | ||
50 | 254 | 267 | 300 | 684 | 835 | 98 | ||
80 | 295 | 317 | 380 | 230 | 530 | 785 | 946 | 130 |
100 | 350 | 368 | 430 | 795 | 946 | 156 | ||
150 | 480 | 473 | 550 | 260 | 630 | 945 | 1160 | 208 |
200 | 600 | 615 | 650 | 945 | 1160 | 250 | ||
250 | 650 | 670 | 690 | 1050 | 1320 | 265 | ||
300 | 740 | 770 | 800 | 1145 | 1320 | 265 | ||

手机二维码

微信二维码